
木作定制为现代都市生活注入了一股自然的暖流
它以其自然的材质和温存的触感
有效中和了高速运转的生活节奏
为居住者打造了一个
可以放松身心、重获内在平衡的舒适空间
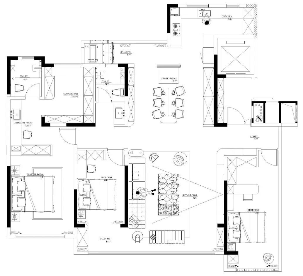
城市:济南
面积:200m²
布局:四室两厅三卫

▲原始平面布局

▲落地平面布局
【空间布局与功能分区】
四室两厅三卫:户型包含四个卧室、两个客厅和三个卫生间,满足多代同堂或大家庭的居住需求。多个卫生间的设计,提升了居住的便捷性和私密性。
动静分离:注重动静分离,将卧室等休息区域与客厅、餐厅等公共活动区域分开,确保居住者的私密性和休息质量。
双套房设计:部分户型可能采用双套房设计,主卧和次卧均配备独立卫生间和衣帽间,提升居住舒适度。
【采光与通风】
大面宽短进深:采用大面宽短进深的设计理念,增加采光面,提高通风效果。客厅面宽达到7米以上,确保室内光线充足。
南北通透:客厅、餐厅等公共区域直通阳台,形成穿堂风,有助于室内空气流通。户型设计注重南北通透,确保空气对流,提高居住舒适度。
多面采光:设置多个窗户或阳台,确保光线充足,视野开阔。
玄关设计

一进门,木作与石材在空间中并置交融。它们各自保有独特的肌理属性又建立起一种秩序感,呈现出沉稳与明朗兼具的气质。玄关台上可以放置绿植或艺术摆件,以彰显主人喜好,踏进门就可以感受到整个家的独特气息。
客餐厅设计



客餐厅采用开放式布局,根据业主的功能需求,设计师在设计时布局精准且克制,质感尽显。空间主调为统一的胡桃木色,奠定稳大气的风格。同属灰色系护墙与玻璃门的融入,在细节中提升了空间层次,营造出低调奢华的居住氛围。
主卧设计

卧室设计以舒适为核心基调,延续动区胡桃材质确保空间统一性,既保留了胡桃木特有的亲和力与温度,又巧妙地借用玻璃的通透,让整个卧室显得敞亮而富有层次,营造出一种既独立又相连的居住体验。




次卧设计



当住宅超越了“居住容器”的单一属性
会成为居者情绪安放与精神寄托的载体
它既能通过设计彰显个人独特个性
也能以细节传递生活温度
PS:下篇小编将为大家带来本案例实景展示
敬请期待
END



